Rif: Gallarate capannone
GALLARATE
VARESE - zona Cascinetta
In zona industriale/artigianale di Gallarate, proponiamo in vendita due capannoni collegati internamente, per una superficie totale di circa 1.200 mq. L'immobile si distingue per la flessibilità degli spazi, l'ottima luminosità naturale e la potenzialità di riconversione in spazi creativi o residenziali (es. loft).
CARATTERISTICHE PRINCIPALI
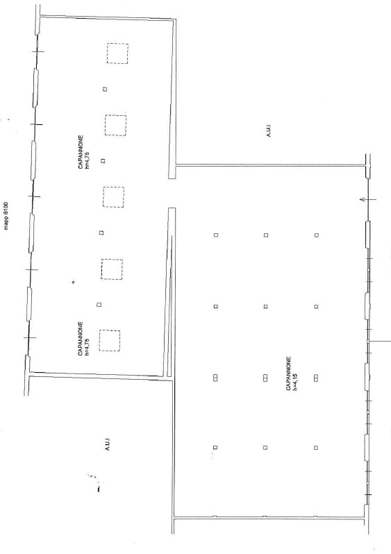
• Superficie totale: 1.200 mq
• Due corpi uniti da accesso interno
• Altezze interne:
• Capannone fronte strada privata: h. 4,15 m
• Capannone posteriore: h. 4,75 m
• Accesso carraio per mezzi
• 9 finestre laterali e 5 lucernari per ottima illuminazione naturale
• Ingresso indipendente da strada privata
• Struttura open space facilmente modulabile
DESTINAZIONE D'USO E POTENZIALITÀ
Attualmente accatastato come D/1 (opificio), l'immobile è perfetto per attività artigianali, produttive o di deposito.
Grazie alla configurazione interna, si presta a trasformazioni in:
• Loft residenziali
• Showroom
• Studi professionali
• Spazi coworking o laboratori creativi
Il cambio di destinazione d'uso è da verificare presso il Comune di Gallarate, in funzione del PGT vigente.
POSIZIONE
L'immobile si trova in zona industriale servita, facilmente accessibile:
• A pochi minuti dall'ingresso dell'Autostrada A8 Milano-Varese
• Vicino al centro di Gallarate e ai principali servizi
• Posizione tranquilla ma ben collegata
IDEALE PER
✔️ Artigiani o imprese produttive
✔️ Investitori o sviluppatori immobiliari
✔️ Architetti alla ricerca di spazi trasformabili in loft
✔️ Aziende che cercano magazzini o sedi operative versatili
Contattaci per maggiori informazioni, planimetrie e visita in loco.
CARATTERISTICHE PRINCIPALI
• Superficie totale: 1.200 mq
• Due corpi uniti da accesso interno
• Altezze interne:
• Capannone fronte strada privata: h. 4,15 m
• Capannone posteriore: h. 4,75 m
• Accesso carraio per mezzi
• 9 finestre laterali e 5 lucernari per ottima illuminazione naturale
• Ingresso indipendente da strada privata
• Struttura open space facilmente modulabile
DESTINAZIONE D'USO E POTENZIALITÀ
Attualmente accatastato come D/1 (opificio), l'immobile è perfetto per attività artigianali, produttive o di deposito.
Grazie alla configurazione interna, si presta a trasformazioni in:
• Loft residenziali
• Showroom
• Studi professionali
• Spazi coworking o laboratori creativi
Il cambio di destinazione d'uso è da verificare presso il Comune di Gallarate, in funzione del PGT vigente.
POSIZIONE
L'immobile si trova in zona industriale servita, facilmente accessibile:
• A pochi minuti dall'ingresso dell'Autostrada A8 Milano-Varese
• Vicino al centro di Gallarate e ai principali servizi
• Posizione tranquilla ma ben collegata
IDEALE PER
✔️ Artigiani o imprese produttive
✔️ Investitori o sviluppatori immobiliari
✔️ Architetti alla ricerca di spazi trasformabili in loft
✔️ Aziende che cercano magazzini o sedi operative versatili
Contattaci per maggiori informazioni, planimetrie e visita in loco.
Consistenze
| Descrizione | Superficie | Sup. comm. |
|---|---|---|
| Principali | ||
| Capannone - piano terra | 1.200 Mq | 1.200 Mqc |
| Totale | 1.200 Mqc | |







